Caroline Street

Limehouse, London, E1

Type

Flat

Bedrooms

3

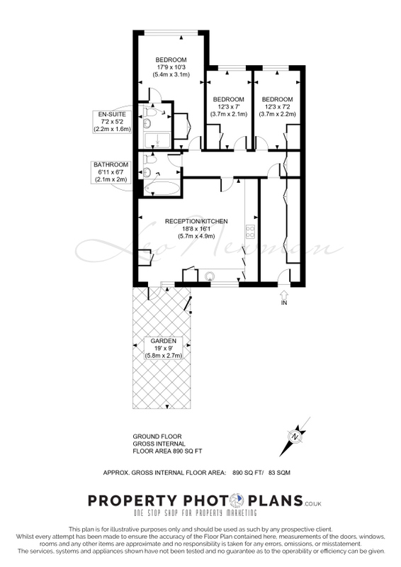
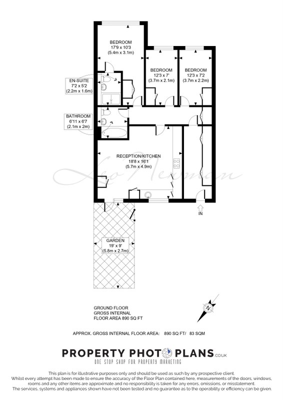
This ground floor flat offers three bedrooms, two bathrooms and a private garden, set within a new development on Caroline Street.

make offer
  • key details
  • Description
  • floorplan
  • location
  • photos

PRICE £2,650.00 per month

DEPOSITE £3,057

EPC B

LOCAL AUTHORITY Limehouse

The graph shows this property's current and potential energy efficiency.

  • Newly Built Three Bedroom Flat
  • Private Garden
  • Two Bathrooms (One En Suite)
  • Modern Open-Plan Reception and Kitchen

This ground floor flat offers three bedrooms, two bathrooms and a private garden, set within a newdevelopment on Caroline Street. The property is finished to a high standard throughout with contemporary interiors and a thoughtful layout. The open-plan reception and kitchen is a bright and generous space, fitted with sleek cabinetry, integrated appliances and wood flooring, with direct access to the garden through full-height glass doors. The principal bedroom includes an en-suite shower room, while two further bedrooms are served by a modern family bathroom. Both bathrooms are stylishly appointed with black fixtures, porcelain tiling and high-quality fittings A landscaped private garden completes the home, providing a peaceful outdoor area for everyday use. With excellent proportions, modern finishes and a well-connected Limehouse location, this is a practical and attractive home. Deposit: £3,057 EPC Rating: B Tax Band: E Local Authority: Tower Hamlets

Request Viewing

DD slash MM slash YYYY
Preferred Time**
:
Hidden
This field is for validation purposes and should be left unchanged.