Type
FlatBedrooms
4
Type
FlatBedrooms
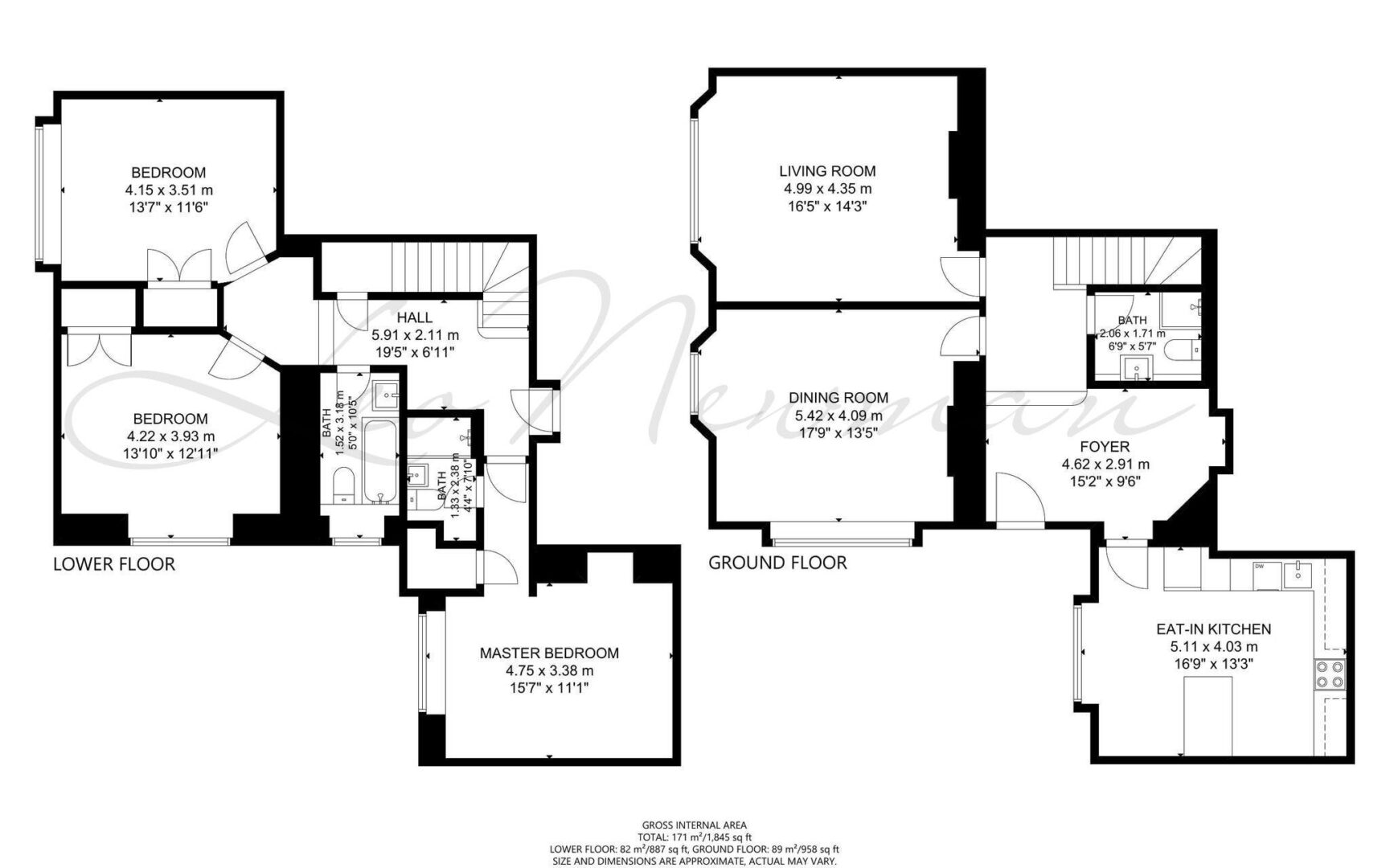
4£200 AMAZON WELCOME VOUCHER TO NEW TENANTS. Large, newly refurbished three double bedroom, three bathroom duplex apartment set on the ground and lower ground floors of this red brick mansion block in Moscow Road, Bayswater. Full time caretaker.
PRICE £4,250.00 per month
DEPOSITE £5,884
EPC B
LOCAL AUTHORITY Bayswater
The graph shows this property's current and potential energy efficiency.
**£200 AMAZON WELCOME VOUCHER TO NEW TENANTS** Large recently refurbished four double bedroom, three bathroom duplex apartment set on the ground and lower ground floors of this red brick mansion block in Moscow Road, Bayswater. With very generous proportions the property comprises to the ground floor entrance hall, reception room, separate fitted eat-in kitchen and shower room. To the lower ground floor three double bedrooms and two bathrooms. Moments from local cafes, restaurants, shops and amenities in Queensway and Westbourne Grove. Located within short walking distance of Kensington Gardens and transport links at Bayswater (Circle and District Lines) and Queensway (Central Line) Stations. Walk Through Available - Please Contact Leo Newman. Deposit £5,884 EPC Rating C Council Tax Band G Local Authority Westminister