AC Court, Harvest Lane

Thames Ditton, Thames Ditton, KT7

Type

Flat

Bedrooms

1

Presenting a bright and contemporary NEW one-bedroom flat to rent in the desirable AC Court development on Harvest Lane, Thames Ditton.

make offer
  • key details
  • Description
  • floorplan
  • location
  • photos

PRICE £1,425.00 per month

DEPOSITE £1,644

EPC C

LOCAL AUTHORITY Thames Ditton

The graph shows this property's current and potential energy efficiency.

  • Recently Built Development
  • First Floor Flat
  • Modern Fitted Kitchen
  • Close To Thames Ditton Village
  • Excellent Location
  • Walkthrough Available

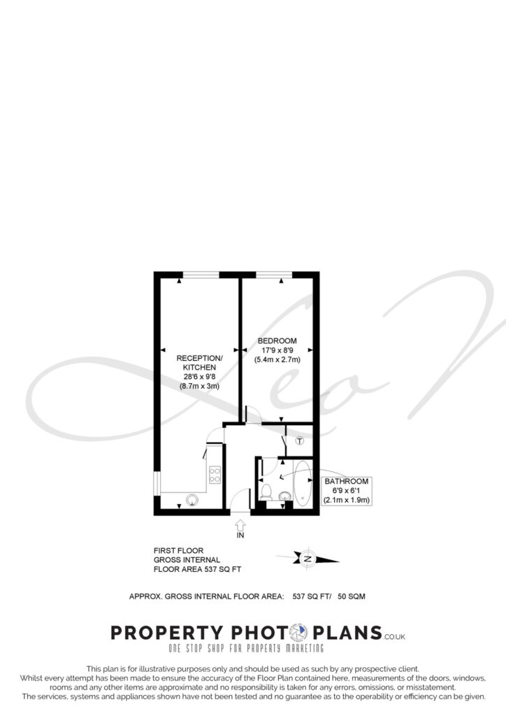
Presenting a bright and contemporary NEW one-bedroom flat to rent in the desirable AC Court development on Harvest Lane, Thames Ditton. Situated on the first floor and covering approximately 537 sq. ft. of internal space, this modern apartment offers a well-proportioned open-plan reception and kitchen with wood-style flooring, recessed spotlights, and large windows that flood the room with natural light. The sleek fitted kitchen includes integrated appliances, ample storage, and a stylish minimalist finish. The double bedroom is spacious and light, featuring soft carpet flooring and a peaceful aspect, while the bathroom is finished to a high standard with marble-effect tiles, chrome fittings, and a bath with overhead shower. Located moments from the River Thames and Thames Ditton Village, AC Court provides easy access to Surbiton, Esher and Kingston, with excellent local amenities and transport links. Walkthrough Video Available - Please Contact Leo Newman. Deposit: £1,644 EPC Rating: C Tax Band: Local Authority:

Request Viewing

DD slash MM slash YYYY
Preferred Time**
:
Hidden
This field is for validation purposes and should be left unchanged.