Type
FlatBedrooms
2
Type
FlatBedrooms
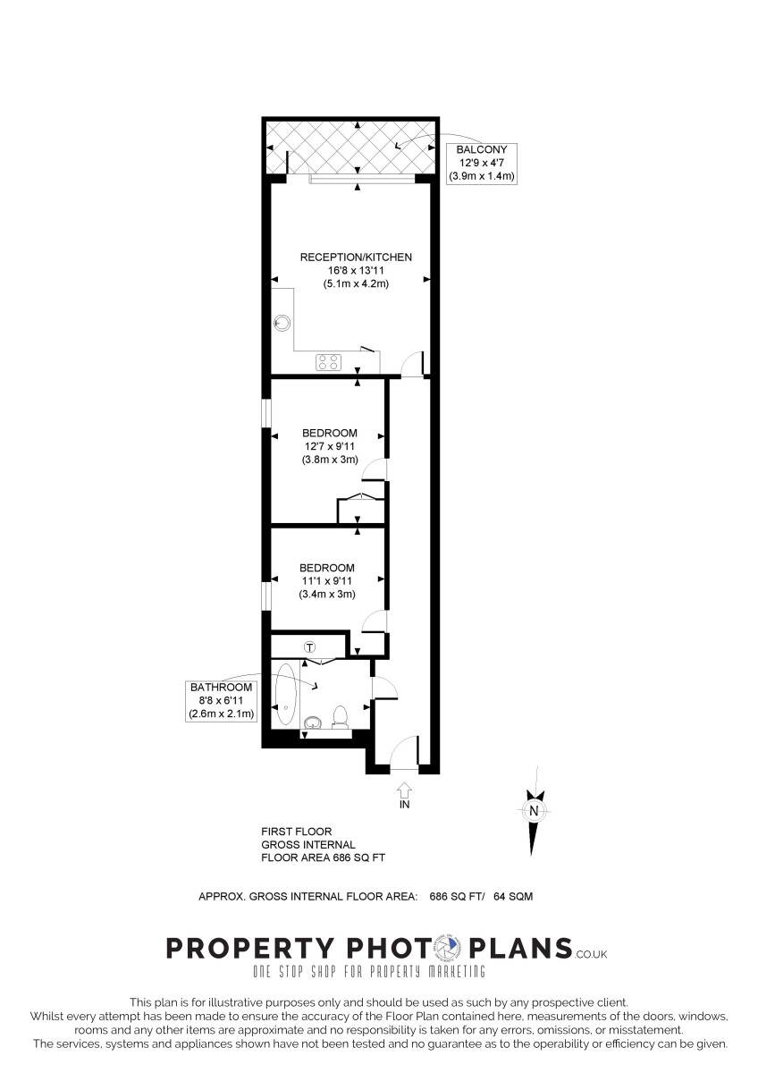
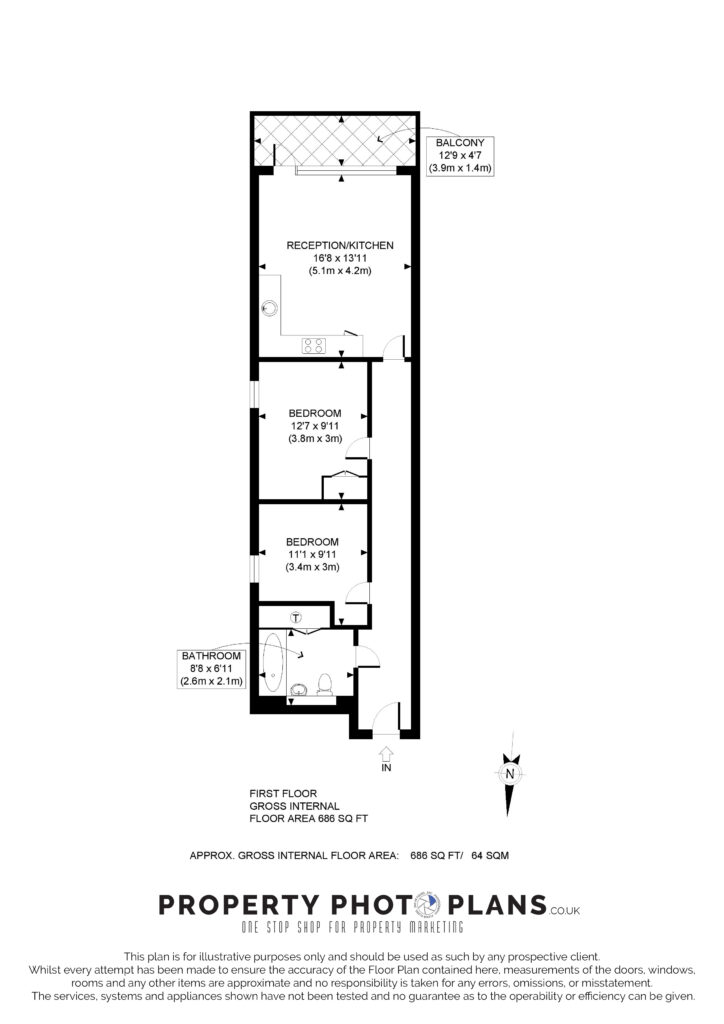
2A spacious two bedroom ground floor flat located on Caroline Street, E1. Located close to Queensway, Bayswater, and Royal Oak stations, offering access to the Central, Circle, and District lines.
PRICE £1,800.00 per month
DEPOSITE £2,076
EPC C
LOCAL AUTHORITY Limehouse
The graph shows this property's current and potential energy efficiency.
A spacious two bedroom ground floor flat located on Caroline Street, E1. The property includes an open-plan kitchen and reception area with wood flooring, a modern fitted kitchen with integrated appliances, two double bedroom with carpeted flooring, and a contemporary bathroom with a full-sized bath and overhead shower. The flat benefits from floor-to-ceiling windows. Located close to Queensway, Bayswater, and Royal Oak stations, offering access to the Central, Circle, and District lines. Walkthrough Available. Furnished or Unfurnished Subject to Negotiations. Deposit: £2,076 EPC Rating: C Council Tax Band TBC Local Authority: Tower Hamlets